上歐閥門Q41F美標法蘭球閥產品展示圖片 
| 產品名稱: | Q41F球閥 | 產品型號: | Q41F-16P | | 驅動方式: | 手動、氣動、電動、波動 | 連接形式: | 法蘭 | | 結構形式: | 浮動球球閥 | 密封結構: | 聚四氟乙烯等 | | 壓力范圍: | 1.6-10MPa | 公稱通徑: | DN15-DN250 | | 常用材質: | WCB、304、316 | 技術咨詢: | 021-31007323 |
一、Q41F球閥產品特征: 1.適用介質:水、氣、油品、天然氣和酸碳腐蝕性介質 2.適用溫度:-196-350℃ 3.驅動方式:手動、氣動、電動、波動等 4.公稱通徑:DN15-250mm 1/2″-10″ 二、Q41F球閥主要零件及材質:
序號NO. | 零件名稱 | 材質 | GB | ASTM | 1 | 閥體 | WCB | A216-WCB | 2 | 密封圈 | PTFE | PTFE | 3 | 球體 | 1Cr18Ni9Ti | SS304 | 4 | 螺母 | 35 | A194-2H | 5 | 螺柱 | 35CrMoA | A193-B7 | 6 | 石體 | WCB | A216-WCB | 7 | 墊片 | 柔性石墨+不銹鋼 | B12.10-304/F.G | 8 | 填料 | PTFE | PTFE | 9 | 填料壓蓋 | WCB | A216-WCB | 0 | 定位片 | 25 | A105 | 11 | 擋圈 | 65Mn | AISI 1066 | 12 | 手柄 | K33 | A47-667 Gr.32510 | 13 | 閥桿 | 1Cr33 | A276-410 | 14 | 螺釘 | 35 | A193-B7 | 15 | 止推墊片 | PTFE | PTFE |
三、Q41F球閥技術規范:
設計依據 | 國標系列 | 美標系列 | 設計標準 | GB/T12237 | AP16D | ANSI B16.34 | 法蘭連接結構長度 | GB/T12221 | AP16D | ANSI B16.10 | 結構長度(焊接) | GB/T15188.1 | AP16D | ANSI B16.10 | 連接法蘭 | GB/T9113 JB/T79 Hg20592 | ANSI B16.5、B16.47 | 對焊端 | GB/T12224 | ASNI B16.25 | 試驗和檢驗 | GB/T9092 | AP16D | AP1598 |
四、Q41F球閥試驗壓力:
壓力等級 | 試驗壓力(MPa) | 公稱壓力(PN) | 磅級(Class) | 殼體試驗 | 密封試驗 | 1.0 | - | 1.5 | 1.1 | 1.6 | - | 2.5 | 1.76 | 2.5 | - | 3.8 | 2.75 | 4.0 | - | 6.0 | 4.4 | 6.4 | - | 9.6 | 7.04 | - | 150 | 3.0 | 2.2 | - | 300 | 7.6 | 5.6 | - | 600 | 15.0 | 11.0 | - | 10K | 2.4 | 1.5 | - | 20K | 5.8 | 4.0 |
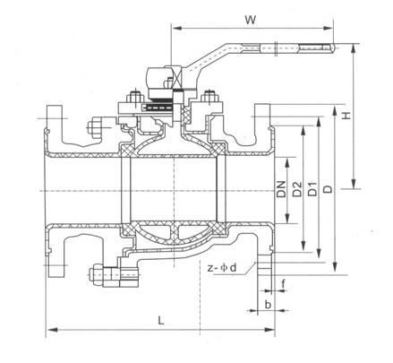
五、Q41F球閥產品結構圖: 
六、Q41F球閥PN1.6MPa連接尺寸及重量:
公稱通徑DN | 15 | 20 | 25 | 32 | 40 | 50 | 65 | 80 | 100 | 125 | 150 | 200 | L | 130 | 140 | 150 | 165 | 180 | 200 | 220 | 250 | 280 | 320 | 360 | 400 | H | 59 | 63 | 75 | 85 | 95 | 107 | 140 | 152 | 178 | 252 | 272 | 342 | W | 130 | 130 | 160 | 180 | 230 | 230 | 400 | 400 | 650 | 1050 | 1050 | 1410 | Wt(㎏) | 2.5 | 3 | 5 | 6 | 7 | 10 | 15 | 19 | 33 | 58 | 93 | 160 |
七、Q41F球閥PN2.5MPa連接尺寸:
公稱通徑DN | 15 | 20 | 25 | 32 | 40 | 50 | 65 | 80 | 100 | 125 | 150 | 200 | L | 130 | 140 | 150 | 165 | 180 | 200 | 220 | 250 | 320 | 400 | 400 | 550 | H | 59 | 63 | 75 | 97 | 107 | 142 | 152 | 178 | 252 | 272 | 342 | 345 | W | 130 | 130 | 160 | 230 | 230 | 400 | 400 | 700 | 1100 | 1100 | 1500 | 1500 | Wt(Kg) | - | - | - | - | - | - | - | - | - | - | - | - |
八、Q41F球閥PN4.0MP連接尺寸:
公稱通徑DN | 15 | 20 | 25 | 32 | 40 | 50 | 65 | 80 | 100 | 125 | 150 | 200 | L | 130 | 140 | 150 | 180 | 200 | 220 | 250 | 280 | 320 | 400 | 400 | 550 | H | 59 | 63 | 75 | 97 | 107 | 142 | 152 | 178 | 252 | 272 | 342 | 345 | W | 130 | 130 | 160 | 230 | 230 | 400, | 400 | 700 | 1000 | 1100 | 1500 | 1800 | Wt(Kg) | - | - | - | - | - | - | - | - | - | - | - | - |
九、Q41F球閥PN6.4MPa連接尺寸:
公稱通徑DN | 15 | 20 | 25 | 32 | 40 | 50 | 65 | 80 | 100 | 125 | 150 | 200 | L | 165 | 190 | 216 | 229 | 241 | 292 | 330 | 356 | 432 | 408 | 559 | 660 | H | 59 | 63 | 75 | 97 | 107 | 142 | 152 | 178 | 252 | 272 | 305 | 398 | W | 130 | 130 | 160 | 230 | 230 | 400 | 400 | 700 | 1000 | 1100 | 1500 | 1800 | Wt(Kg) | - | - | - | - | - | - | - | - | - | - | - | - |
十、Q41F球閥PN10.0MPa連接尺寸: 公稱通徑DN | 15 | 20 | 25 | 32 | 40 | 50 | 65 | 80 | 100 | 125 | 150 | 200 | L | 165 | 190 | 216 | 229 | 241 | 292 | 330 | 356 | 432 | 508 | 559 | 660 | H | 59 | 63 | 75 | 97 | 107 | 142 | 152 | 178 | 252 | 272 | 305 | 398 | W | 130 | 130 | 160 | 230 | 230 | 400 | 400 | 700 | 1000 | 1100 | 1500 | 1800 | Wt(Kg) |
|
|
|
|
|
|
|
|
|
|
|
|
|